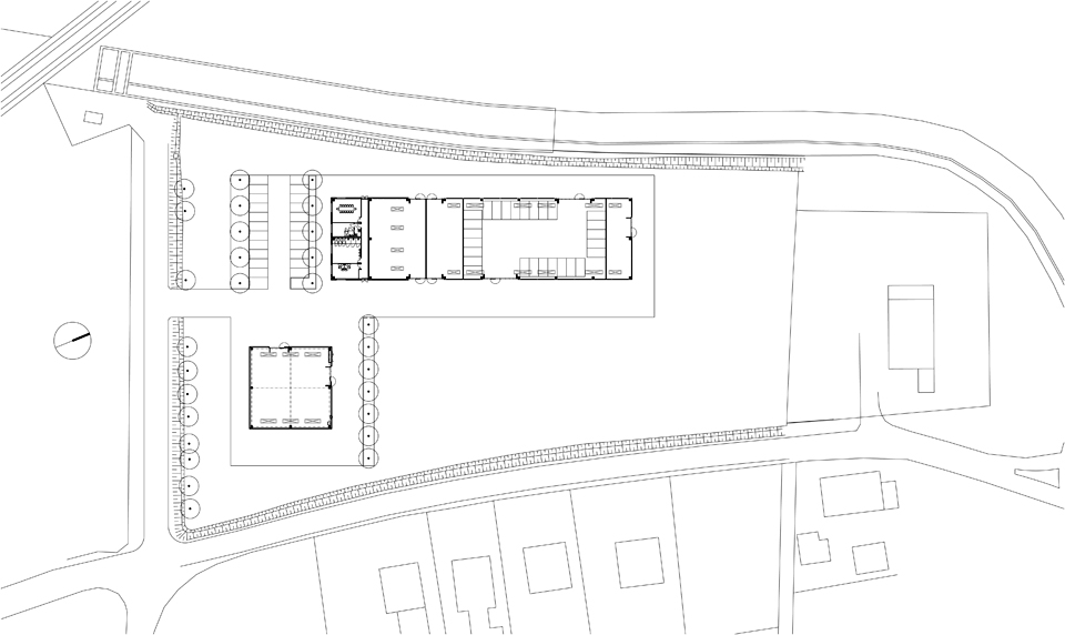
Magazzino comunale
Lotto 9 Edifici Municipali Temporanei
(E.M.T.)
Luogo: San Felice sul Panaro (Modena)
Ente: Regione Emilia Romagna
Servizio: Progetto Preliminare, definitivo, esecutivo
Impresa: Pizzarotti & C S.p.A.
Progetto:
Ilario Chiarel
Marino Fei
Maurizio Pavani
Strutture: Ing. Luigi Michelini
Impianti: Europlant
Computi, capitolati, sicurezza in fase di progettazione: Massimo Ranieri
Credit renderings: Andrea Salmi
SLP: 2.300 mq
Costo: 2.342.000 €
Anno: 2012-2014
|

|
|